NatHERS (Nationwide House Energy Rating Scheme) is a star rating system (out of 10) that rates the thermal efficiency of the home’s design. In other words, how well the house can stay at a comfortable temperature throughout the year without artificial heating or cooling. Every Ecovillage home must achieve a minimum of 8 stars. Read more on our Sustainability Assessments page.
THE PAVILLIONS – Price on enquiryÂ
Cottage Lot
DESIGNED in-house by the Ecovillage design Team
YOUR CHOICE OF BUILDER, MATERIALS AND PRICE
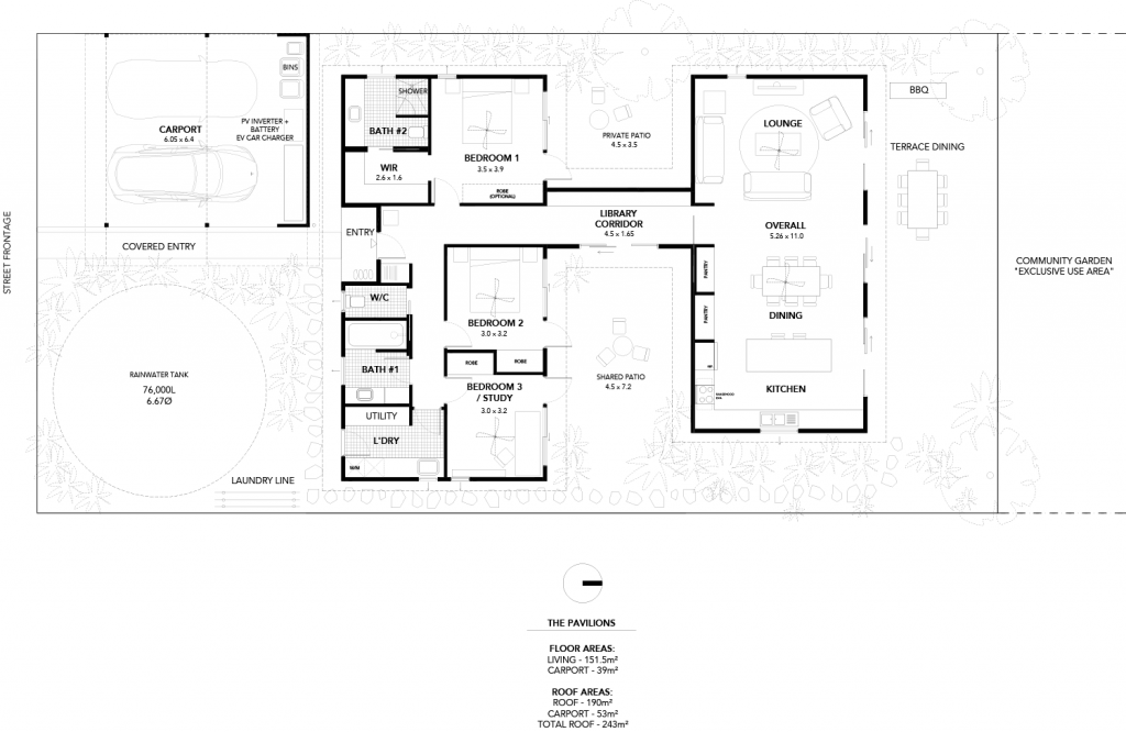
Sun shine on! By splitting the house volume into a separate living pod and sleeping wing linked by a library walkway, The Pavillions maximises its northern solar exposure and opportunity for cross ventilation, bringing glorious light and sea breezes into your home. The result is naturally well-lit living spaces with two courtyard patio areas adjoining three bedrooms to encourage alfresco living and a seamless connection with the landscape.
Designed by the Ecovillage Design Team, this home can be built in a range of materials, by the builder of your choice. The Pavillions house plans can be purchased from Sustainable Settlements, please email [email protected]
Key Features
- Choice of structural materials:
- Cladding examples:
-
-
- FSC weatherboardsÂ
- Plantation weatherboards
- Painted James Hardie 180mm Linea FC weatherboards
- HempcreteÂ
- Reverse brick veneerÂ
-
- Zincalume roofing
- uPVC double glazed windows
- Burnished concrete floors and tiled bathrooms / laundry
Each builder prices homes differently. Please ensure you ask for a detailed specification list (inclusions and exclusions) from your builder for your particular home during your contract negotiations.
Sustainability Features
- Passive solar design
- Well insulated, thermally efficient home
- Low embodied energy materials (carbon negative)
- Energy efficient heat pump hot water system
- Plumbed ready for greywater system
- Minimum 6kW solar PV system (not included)
- Rainwater tanks and pump (not included)
Pricing
An Ecovillage Pre-designed Home and lot consist of two wholly separate contracts:Â
- Buyers must purchase and settle on an Ecovillage lot first from the developer, Sustainable Settlements. Â
- Buyers then enter into a separate financial agreement and building contract with their chosen builder. Sustainable Settlements is not involved in this process.Â
Documentation and Certifications
Life Cycle Assessment (LCA) is an excellent method for measuring the environmental impact of a building by assessing “every single impact aspect of a product or process over its entire life span. We require every Ecovillage home to undertake an LCA. Read more about Sustainability Assessments here.
We recommend that purchasers undertake an independent financial health check, for example,using www.alwayscheckyourbuilder.com.au




