NatHERS (Nationwide House Energy Rating Scheme) is a star rating system (out of 10) that rates the thermal efficiency of the home’s design. In other words, how well the house can stay at a comfortable temperature throughout the year without artificial heating or cooling. Every Ecovillage home must achieve a minimum of 8 stars. Read more on our Sustainability Assessments page.
THE SHERVINGTON – Price on enquiryÂ
Family Lot
DESIGNED in-house by the Ecovillage design Team
YOUR CHOICE OF BUILDER, MATERIALS AND PRICE
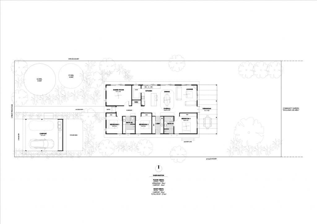
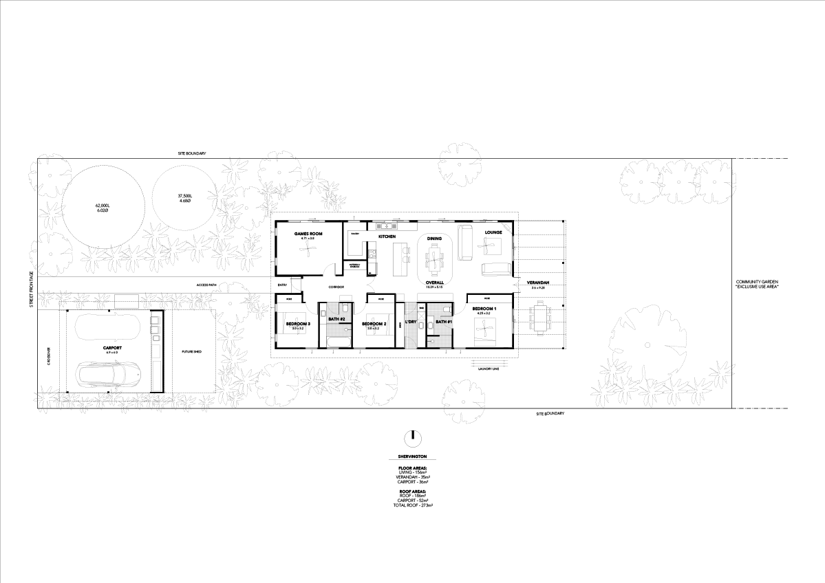
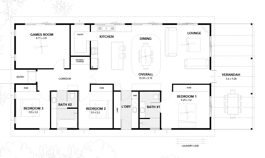
The Shervington is named after a prominent Witchcliffe family and former landowner of the Ecovillage site. The simplicity of this three bedroom home belies its intelligent design, which takes all its cues from the stunning landscape it inhabits. Space without excess, open plan living and an extra games room for the kids makes it a great option for an Ecovillage family. With alfresco options on the north or west/east (depending on your lot orientation), this home makes entertaining a breeze.
Designed in-house by the Ecovillage Design Team, this home can be built in a range of structural options including timber, hempcrete or reverse brick veneer by the builder of your choice. Your choice of structural material is the main driver of price.
Ecovillage builders
Key Features
- Choice of structural materials:
- Cladding options:
-
-
- FSC, recycled or plantation certified weatherboardsÂ
- Painted James Hardie 180mm Linea FC weatherboards
- HempcreteÂ
- Reverse brick veneerÂ
-
- Zincalume roofing
- uPVC double glazed windows
- Burnished concrete floors and tiled bathrooms / laundry
Each builder prices homes differently. Please ensure you ask for a detailed specification list (inclusions and exclusions) from your builder for your particular home during your contract negotiations.
Sustainability Features
- Passive solar design
- Well insulated, thermally efficient home
- Low embodied energy materials (carbon negative)
- Energy efficient heat pump hot water system
- Plumbed ready for greywater system
- Minimum 6kW solar PV system (not included)
- Rainwater tanks and pump (not included)
Pricing
An Ecovillage Pre-designed Home and lot consist of two wholly separate contracts:Â
- Buyers must purchase and settle on an Ecovillage lot first from the developer, Sustainable Settlements. Â
- Buyers then enter into a separate financial agreement and building contract with their chosen builder. Sustainable Settlements is not involved in this process.Â
Documentation and Certifications
Life Cycle Assessment (LCA) is an excellent method for measuring the environmental impact of a building by assessing “every single impact aspect of a product or process over its entire life span. We require every Ecovillage home to undertake an LCA. Read more about Sustainability Assessments here.
It is important to undertake an independent financial health check of your builder, e.g., using www.alwayscheckyourbuilder.com.au.





